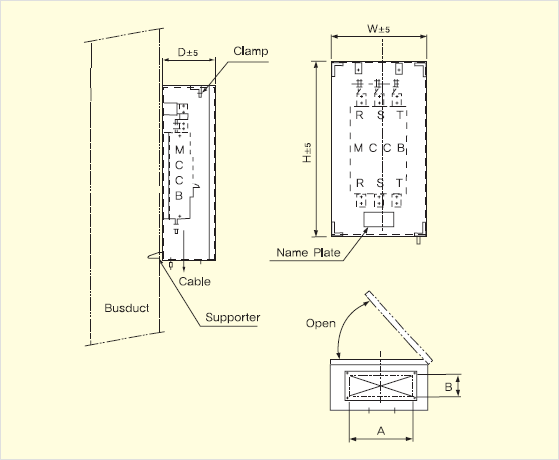
With Molded Case Circuit Breaker Type(MCCB-Type) : Internal Operation
 
Frame
(AF)
MCCB Dimension(mm) Cable Hole
W H D A B
600FA ABS603a 300 850 200 240 100
ABL603a
800FA ABS803a 300 850 200 240 100
ABL803a
1000FA ABS1003 350 1100 220 280 150
 

¡Ø Use the standard of Shinhwa Busduct for MCCB.

 
 
 
Tap Box(MCCB-Type, 4P) : Internal Operation
 
Frame
(AF)
MCCB Dimension(mm) Cable Hole
W H D A B
600FA ABS604a 365 850 200 270 120
ABL604a
800FA ABS804a 365 850 200 270 120
ABL804a
1000FA ABS1004 400 1100 220 280 150
 

¡Ø Use the standard of Shinhwa Busduct for MCCB.