3W/4W(600A-2000A)
 
Rated current
(A)
Fig Dimension(mm)
Aluminum Bronze A(3W) A(4W) B C D E
-
600
800
1000
1200
1350
1500
1600
2000
600
800
1000
1200
1350,1500
1600
-
2000
-
1
1
2
2
3
3
4
4
5
350
350
350
350
350
350
350
350
350
450
450
450
450
450
450
450
450
450
175
185
210
235
260
285
310
320
375
40
50
75
100
125
150
175
185
240
-
-
40
50
40
50
40
45
45
145
155
180
205
230
255
280
290
345
  『 See the detailed drawing of the unit part
 
 
 
3W/4W(2500A-3500A)
 
Rated current
(A)
Fig Dimension(mm)
Aluminum Bronze A(3W) A(4W) B C D E F
-
2500
-
3000
3500
2500
3000
3500
-
-
3
3
4
4
5
410
410
410
410
410
540
540
540
540
540
460
510
560
580
690
125
150
175
185
240
40
50
40
45
45
215
240
265
275
330
200
225
250
260
315
  『 See the detailed drawing of the unit part
 
 
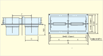
『 A-60, B-60 is an open processing size of the panel part
 
3W / 4W(4000A-6500A)
 
Rated current
(A)
Fig Dimension(mm)
Aluminum Bronze A(3W) A(4W) B C D E F
-
-
4000
4500
5000
4000
4500
5000
5500
6500
3
3
4
4
5
410
410
410
410
410
540
540
540
540
540
660
735
810
840
1005
125
150
175
185
240
40
50
40
45
45
210
235
260
270
325
200
225
250
260
315
  『 See the detailed drawing of the unit part
 
 
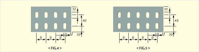
Detailed drawing of the unit part bus
 
『 A-60, B-60 is an open processing size of the panel part